Modulares
MOX 32+ m²


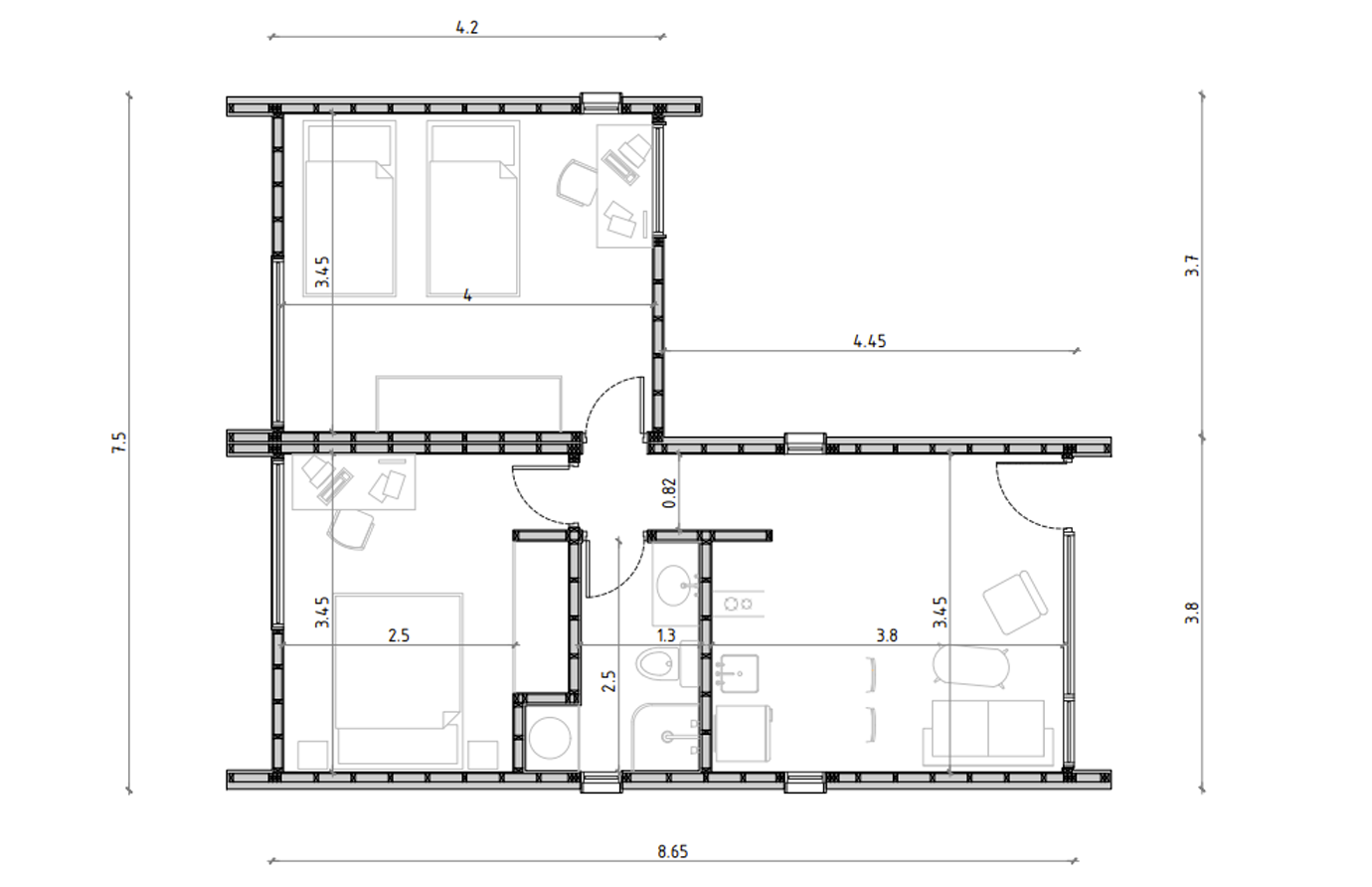
MOX-32+

Amplitud del espacio

Variante del modelo Mox-32 que incorpora un segundo dormitorio mediante un módulo adicional. Permite sumar un nuevo ambiente para adaptarse a nuevas necesidades, manteniendo intactas las dimensiones del living, la cocina y el baño. Con esta ampliación, la vivienda alcanza una superficie total de 48 m².

Disposición interior:

  • Living
  • Cocina
  • Baño
  • Dormitorio principal
  • Dormitorio adjunto

Nuestro proceso constructivo



Pen Ruler Icon

Construcción

Construímos la vivienda en los talleres de OXIPAL S.A. en base a diseños estandarizados.

Truck Icon

Traslado

Trasladamos la vivienda desde nuestra planta industrial en Paysandú a cualquier localidad del país

Pen Ruler Icon

Instalación

Enviamos a nuestro equipo de profesionales a instalar tu casa y supervisamos cada paso del proceso.

Plano lateral MOX 64
Plano MOX 64
Plano MOX 64
PLANOS

Comparativa de modelos MOX

Características MOX 32 MOX 32+ MOX 64
Superficie total 32 m² 48 m² 64 m²
Living
Estándar

Estándar

Más amplio
Cocina integrada


Baño completo


Dormitorio principal


Segundo dormitorio


Precio base (USD + IVA) USD 45.000 USD 57.500 USD 90.000
MOX 32

Superficie: 32 m²

Living: Estándar

Cocina:

Baño:

Dormitorio principal:

Segundo dormitorio:

Precio: USD 45.000 + IVA

MOX 32+

Superficie: 48 m²

Living: Estándar

Cocina:

Baño:

Dormitorio principal:

Segundo dormitorio: ✅ (módulo adicional)

Precio: USD 57.500 + IVA

MOX 64

Superficie: 64 m²

Living: Más amplio

Cocina:

Baño:

Dormitorio principal:

Segundo dormitorio:

Precio: USD 90.000 + IVA

COTIZACIÓN

Solicitar presupuesto



Rellena el formulario y nos pondremos en contacto para brindarte información personalizada y ayudarte a decidir cómo continuar con tu proyecto.

  • Recuerda enviarnos todos los detalles que consideres pertinentes.
  • Profesionales de Casas en Madera se comunicarán contigo a la brevedad.